GENERAL CONSTRUCTION GALLERY

GENERAL CONSTRUCTION GALLERY
ACCESSORY DWELLING UNIT (ADU)
HOME REMODEL / ADDITION

ACCESSORY DWELLING UNIT (ADU) PROJECTS IN PROGRESS

SOUTHERN CALIFORNIA

1 BEDROOM ACCESSORY DWELLING UNIT (ADU)

| 432 SQ FT |

SOUTHERN CALIFORNIA

2 BEDROOM ACCESSORY DWELLING UNIT (ADU)

| 640 SQ FT |

SOUTHERN CALIFORNIA

1 BEDROOM ACCESSORY DWELLING UNIT (ADU)

| 600 SQ FT |

SOUTHERN CALIFORNIA

2 BEDROOM ACCESSORY DWELLING UNIT (ADU)

| 928 SQ FT |

 

HOME ADDITION / REMODEL IN PROGRESS

 
 

ACCESSORY DWELLING UNIT (ADU) PROJECTS COMING SOON

EL MONTE, CA

2 BEDROOM ACCESSORY DWELLING UNIT (ADU)

| 600 SQ FT |

TEMPLE CITY, CA

2 BEDROOM ACCESSORY DWELLING UNIT (ADU)

| 880 SQ FT |

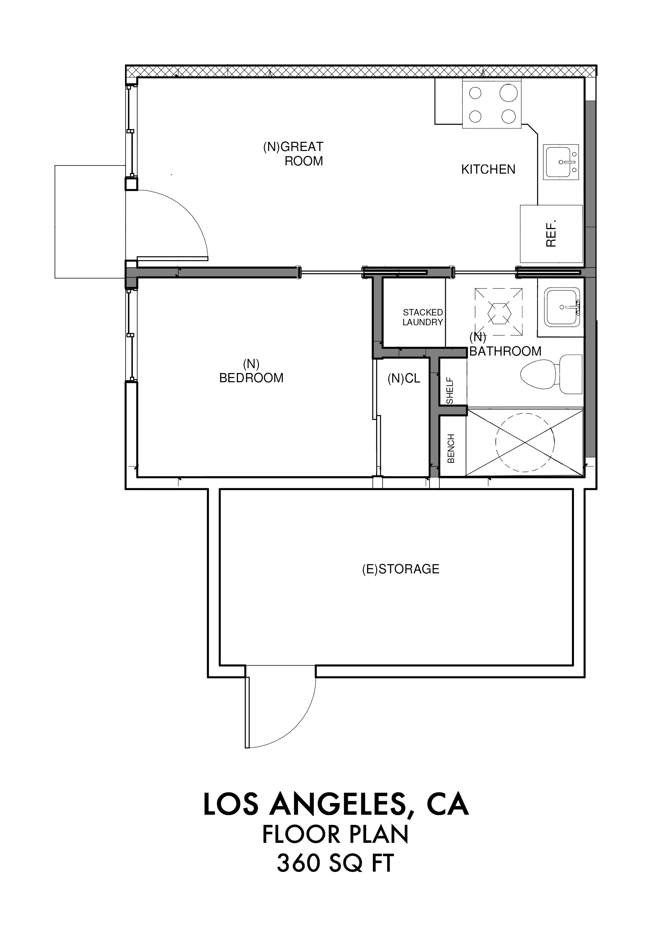
LOS ANGELES, CA

1 BEDROOM ACCESSORY DWELLING UNIT (ADU)

360 SQ FT

 
 

HOME ADDITION / REMODEL PROJECTS COMING SOON

LOS ANGELES, CA (UNIT 2)

2 BEDROOM + DEN FIXER UPPER/REMODEL

| 1,084 SQ FT |

LOS ANGELES, CA

3 BEDROOM FIXER UPPER/REMODEL

| 1,784 SQ FT |


GENERAL CONSTRUCTION GALLERY
ACCESSORY DWELLING UNIT (ADU)
HOME REMODEL / ADDITION